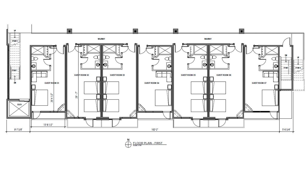
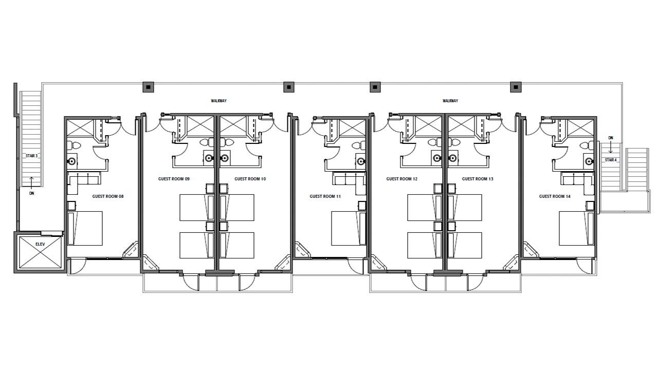
Hotel – Huff

Bedrooms

Bathrooms

Property Size

Energy Star?

Floor Plan Questions?

Interested in this Floor Plan? Learn How to Make it Yours!
Shape
Shape

Need to make adjustments?

Customize Your Floor Plan

Find a floor plan that is close, but still isn’t quite what you’re looking for? No worries! All of our floor plans can be customized or we’ll find the one that works best for your needs. Let us know what you’re looking for.

Find a New Layout

Explore More Floor Plans

Browse through the many varieties of floor plans of cabins, ranch style, two-story, multi-family duplexes and multi-plex buildings and more.  Colorado Building Systems provides building consulting and construction from the ground up.